地埋大口徑玻璃鋼夾砂管道在穿越淤泥、魚塘、過路

及轉彎加固處的施工設計方法
格瑞德集團公司 楊華英
摘要:文中介紹了2004年完成通水的廣州市南洲水廠輸水工程在穿越淤泥、魚塘、過路
等特殊地質的處理施工方法,防止不均勻沉降等方面的設計關鍵技術。
一、工程概況
廣州市南洲水廠輸水工程輸水量為110萬m3/日,工程直徑DN2200mm、工作壓力0.6-0.8MPa,剛度7500N/m2,單線總長約22Km,玻璃鋼管沿線分布在順德及番禺境內。
本工程順德境內的玻璃鋼管單線總長2422.949m(雙管),共分4段,樁號分別為I 0+000.000~I 0+310.270、 II 0+000.000~ II 0+314.110、 III0+000.000 ~ III 0+867.259,IV 0+000.000~ IV 0+931.310 (見平面布置圖及縱剖面圖)。
管線地處珠江三角洲平原,南起順德市西海取水泵站,經潭洲水道、碧桂路、陳村水道、市橋水道等,跨珠江后直達南洲水廠。玻璃鋼管順德段(雙管并列)沿線多為果林場、花圃、魚塘等,番禺段雙管分開沿公路兩側鋪設,地面高程一般標高在0.5- -3m之間, 個別地段標高在5m以上,相對較平坦。
地質鉆孔勘探資料顯示(鉆孔與管線有所偏差,最遠處相差100余m),場地地層由人工填土層、耕植層、沖積層、殘積層、基巖組成。其中人工填土層分布于場地表層,平均厚度約2~3.6m,由沖填土、雜填土及素填土組成,其承載力標準值一般f≤100KPa;耕植層厚度0.2m,同樣-般f≤100KPa;沖積層又可分淤泥、淤泥質土、淤泥質粉砂、粉砂、粘土等亞層。其中淤泥、淤泥質土地勘資料建議f=40~45KPa;粉砂建議f=120~ 130KPa;粘土建議f=150~ 160KPa。殘積層巖性主要為粉質粘土,建議f=180~ 200KPa;基巖為白堊系泥巖和粉砂巖,按其風化程度可分為全風化帶、強風化帶、中風化帶,其總體強度相.對較高,建議f$>350KPa。
玻璃鋼管沿線地下水位較高,順德段距地面0.5 ~ 2m,場地地震基本烈度為VII度。
二、管道典型斷面設計
根據本工程的地物、地貌、地形、地質等條件,玻璃鋼管的布置以減少開挖、減少回填、減少彎點為原則,從而達到減輕地層荷載力、減少工程量,以利于快速施工、優質、經濟的目的。
本工程順德段沿線除林果場、花圃、魚塘外,個別地段還有支線公路和靠近房屋的不利因素。
1、過果林場、花圃的一般地段
控制管頂最小覆土厚度1~ 1.2m,即最小開挖深度4~4.2m (地勘資料顯示8m以內地層無明顯變化,深挖不能改善地基承載條件)。
管頂覆土厚度主要取決地下水位(見表1),其厚度應保證空管不產生上浮破壞。據相關資料計算,地下水位距地面0.5m,覆土厚度1.2m,可以滿足要求,由于多數地段地下水位距地面在0.7m以上,覆土厚度1m即能達到要求。

參照相關規程及滿足施工需要,確定玻璃鋼管中心間距3500mm, 即兩管間凈距1219mm略大于管半徑1141mm。
根據征地及地質條件,本工程一般只能布置為垂直開挖,其底部開挖凈寬7700mm,即兩管外側凈寬為960mm,略大于施工需要值800mm。基坑開挖過寬不僅增加工程量和投資,且對施工不利,會加大施工場地布置和支護及吊裝難度。
個別地段人工填土層、耕植土層相對較厚時,可考上部斜坡開挖,以減少鋼板樁支護壓力。
基坑回填:順德段管底基礎為淤泥或淤泥質粉砂,前者具有高壓縮性,后者具有液化性。其承載力標準值fr=40~45KPa,根本不能作為管道持力層。當開挖深4.2m時,估算基礎面受力約60KPa左右,因此置換管底持力層,加速淤泥固結,提高其承載力是必要的。作法是:底部為200mm厚中粗砂過渡層(其細度模數應大于2,密實度大于90%,下同)、400mm厚灌砂碎石層、200mm厚砂墊層 (管周邊防護層)。
福建省石獅市供水工程及其他工程實踐經驗表明,用砂和碎石置換基礎
持力層后3--10天淤泥固結度基本可滿足要求。玻璃鋼管就位后中粗砂回填至管徑70%高度,上部為夯填土層至地面。
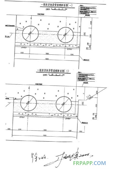
2、過溝(塘)地段
順德地段玻璃鋼管將跨過數處溝(塘),由于無實測水深及水流狀態數據,本報告考慮兩種處理方式:
淺溝(塘)可采取圍堰抽水,斜邊坡開挖、埋管、回填。開挖邊坡取決于下部淤泥(淤泥粉砂)層的相關指標,-般坡度會緩于1: 2.開挖底寬為5700mm,回填分別為(自下而上) : 200mm厚中 粗砂層、400mm灌砂碎石層、C20鋼筋混凝土底板厚150mm、中粗砂管底墊層200mm、中粗砂回填至管頂上100mm、上部 夯填砂包土、頂面保護層250mm厚M7.5漿砌塊石,保護層視溝(塘)功用確定是否需要。
另一種形式為垂直開挖、鋼板樁支護。回填層布置同上。開挖底寬為7700mm。考慮空管抗浮要求,管頂以上同填總厚不小于1500mm.此外也可采取將管拉固在鋼筋混凝土底板之上,以滿足抗浮要求,但管頂以.上覆土厚度仍需大于800mm.
3、 過路地段
過路地段埋管,比較深挖、淺挖兩種形式。當汽車在上部通行,要基本消除其動荷載,約需開挖總深度8m左右,即管頂以上5m左右,如此深挖從施工難度及經濟效益兩方面考慮均不適宜,因此還是按通常的開挖,回填形式較好。
本工程過路地段支護回填結構形式為:兩側垂直開挖、鋼板樁支護,基坑回填依次為底部夯壓木樁(直徑φ 140 ~ 160mm,間距800mm梅花型布置,按每根樁壓力45KN控制),中粗砂層200mm、400mm厚灌砂碎石層、C20鋼筋混凝土板厚150mm.管就位后中粗砂回填至管頂、編織袋裝砂回填(基坑兩側亦填一層裝砂編織袋)、夯填砂包土,然后恢復路面結構。管頂回填總厚不小于1600mm.
4、過樓房側邊地段
靠近樓房側邊地段考慮到管溝開挖可能使房屋產生沉降,因此在靠房屋邊先打一定厚度水泥攪拌樁作支護,另一側用鋼板樁作支護。開挖時應分層均勻開挖,層高不宜大于1m.管溝開挖底寬7700mm,基坑回填依次為200mm厚中粗砂層、400mm厚碎石灌砂層、200mm厚中粗砂管底墊層,玻璃鋼管安裝就位后回填中粗砂至管徑70%高度,上部為夯填土層。管頂回填總厚不小于1200mm。
5、玻璃鋼管轉彎加固處理
在管線水平轉角大于10°,垂直轉角大于7°處設混凝土鎮墩。小于此角度可利用玻璃鋼短管連接。考慮到順德段管線較平緩,垂直轉角均小于7° (過溝、 塘段除外),故只設水平轉彎鎮墩,鎮墩尺寸:寬度為6.7m,高度為3.281m,雙管均勻布置(見圖),長度為彎頭兩端各伸出500mm即為πR a/180+1000,其中R為轉彎半徑-般為6600mm,a為轉角。鎮墩基礎處理:考慮到淤泥層地基承載力較低,在底部夯壓木樁,間距800mm梅花型布置。單樁承載力45KN,樁徑φ140~φ160mm,后鋪200mm厚中粗砂、400mm碎 石灌砂層、最后用100mm厚C10素砼墊層找平。為滿足鎮墩局部沉降要求,鎮墩進出口用短管與玻璃鋼管連接( 基礎處理不一致處同此做法)。
6、排氣閥井和排水閥井
管道沿線地形起伏,考慮到今后運行、檢修需要,-般在管道隆起部位設有排氣閥,管道下凹部位設有排水(泥)閥。
排氣閥井為鋼筋混凝土結構,其長為3100mm,寬為7500mm,頂部一般露出地面500mm,底板頂高程較管中心高程低1700mm,底板下基礎處理從基坑起依次為: 200mm中 粗砂層、400mm厚碎 石灌砂、100mm厚C10素砼墊層。考慮到地基承載力較低,在底板底部夯壓木樁,木樁:直徑中140~ 160mm,間距800mm, 梅花型布置,單樁極限承載力45KN.
排水(泥)閥井為鋼筋混凝土圓形結構,排水(泥)管設在供水.管底部,直徑為φ400mm(內徑) ,先穿過干井,然后至濕井。干井內徑02800mm,壁厚250mm,濕井內徑中1600mm,壁厚250mm.干、濕井頂板應高出地面S00mm,底板下基礎處理同排氣閥井。為滿足排氣閥井和排水閥井局部沉降要求,排氣閥井和排水閥井進出口用短管與玻璃鋼管連接。
三、玻璃鋼管施工中應注意的事項
1、原材料的檢查檢測
玻璃鋼管的原材料應有出廠合格證,監理還應定期和不定期抽檢。回填砂的細度模數需嚴格把關,不能小于2;碎石的含泥量不能超標。
木樁的材質必須良好,以保證壓樁不會劈裂折斷,直徑大小頭不能偏差過多,一般應在20%以內,管頂上部回填土不能用淤泥或淤泥質粉砂。.
2、施工協作配合
南洲水廠輸水工程具有工程規模大、工期緊、工程質量要求高的特點,因此各施工工序的良好配合十分重要,其中尤其是土建施工與管道安裝的良好配合是保證工期和質量的關健之一。土建施工單位往.往希望隨挖、隨填、隨安裝,而安裝單位則希望一次安裝段落盡量長一些;土建單位希望24小時隨叫隨裝,以免出現邊坡塌方或雨天降低墊層質量等事故,而安裝單位則希望盡量在白天安裝。建議在開工前土建施工單位與管道安裝單位簽訂較細的施工配合協議。
3、施工場地布置及注意事項
由于本工程征地寬度僅17.5m,施工場地布置存在一定難度。棄土、管道及其配件、砂石料、木樁等的堆放與施工道路的布置存在矛盾,且物資的堆放與道路均不能離管溝太近(這也是設計中管溝不宜深挖和兩管間間距應盡量小原因之一)。建議在棄土與道路分兩側布置的前題下,大量的砂石料或備用材料需臨時征地堆放,待裝管道應隨運隨裝,必要時堆放在管溝或已回填管頂地面上。各種閥井、鎮墩處需擴大臨時征地。施工道路應盡量布置在征地線外邊側。合理的選用管道吊裝設備也十分重要,既要能單側吊裝雙管,又要盡量減輕管溝支護板樁所受的動荷載。
基礎是淤泥或淤泥質粉砂的管溝,開挖后的支護將是施工的難點之一,需做好加支撐的準備。鋼梁支撐或框架支撐都會影響管道吊裝。
一般可采取選擇合適位置先將管道吊入溝內, 然后在溝內水平搬移就位(這也需要土建施工與管道安裝密切配合)。
淤泥透水性差,挖坑排水一般效果不佳,但又是必要的,管溝開挖時需作好選點布坑。管溝開挖時應預留20 ~ 30cm保護層采用人工開挖,避免機械開挖對淤泥的擾動,破壞淤泥結構,使其喪失承載力。人工開挖時,施工人員應踩在木板.上,邊挖邊退。管溝開挖到設計高程應及時鋪填過渡砂層,以防止淤泥表面析水,影響其承載力。
施工中應密切監測砂、碎石墊層及管周邊回填砂的質量,相應指標不能放寬。
從管道就位即應開始進行管道的沉降及變形觀測,從而連續動態地掌握相關數據。
閥井和鎮墩下部的樁基不僅是為了提高承載力,更主要是解決基礎不均勻沉降和滿足抗震要求。基礎木樁的連接和偏斜在施工中容易被忽視,應予以注意。
四、結論
1、順德段管基為淤泥和淤泥質粉砂,地勘資料建議承載力f=40~4SKPa,因此需進行強化處理。咨詢意見,在滿足施工、運行、維修的前提下,基坑以淺、窄為原則。建議基坑底寬7700mm,管頂覆土深度1200 ~1600mm.基礎處理以置換為主,個別交叉及建筑物下部增設木樁以滿足不均勻沉降和抗震要求。
2.采取管頂覆土厚度1.5m,兩管中心間距5m,工程量、投資及施工場地布置難度會有所增加,但也是可行的(具體設計詳見第二方案)。
五、建議
1.建議在全線玻璃鋼管鋪設前,選定100~120m管段作為先期實驗段,在實驗中完善施工工藝及流程,檢測管道沉降及管底淤泥層的固結(水性態和相關數據。
2、玻璃鋼管的分段試壓是保證質量的重要環節之一,本工程淤泥地段試壓靠背墩的選點將有困難,建議提前予以考慮。
3、建議隨時監測水質變化情況,以防生化污染,降低管壁糙率,影響管道過流能力。
4、建議在地下水位較高的管段布設地下水位監測井,以利于動態掌握其變化情況。










魯ICP備2021047099號